1940

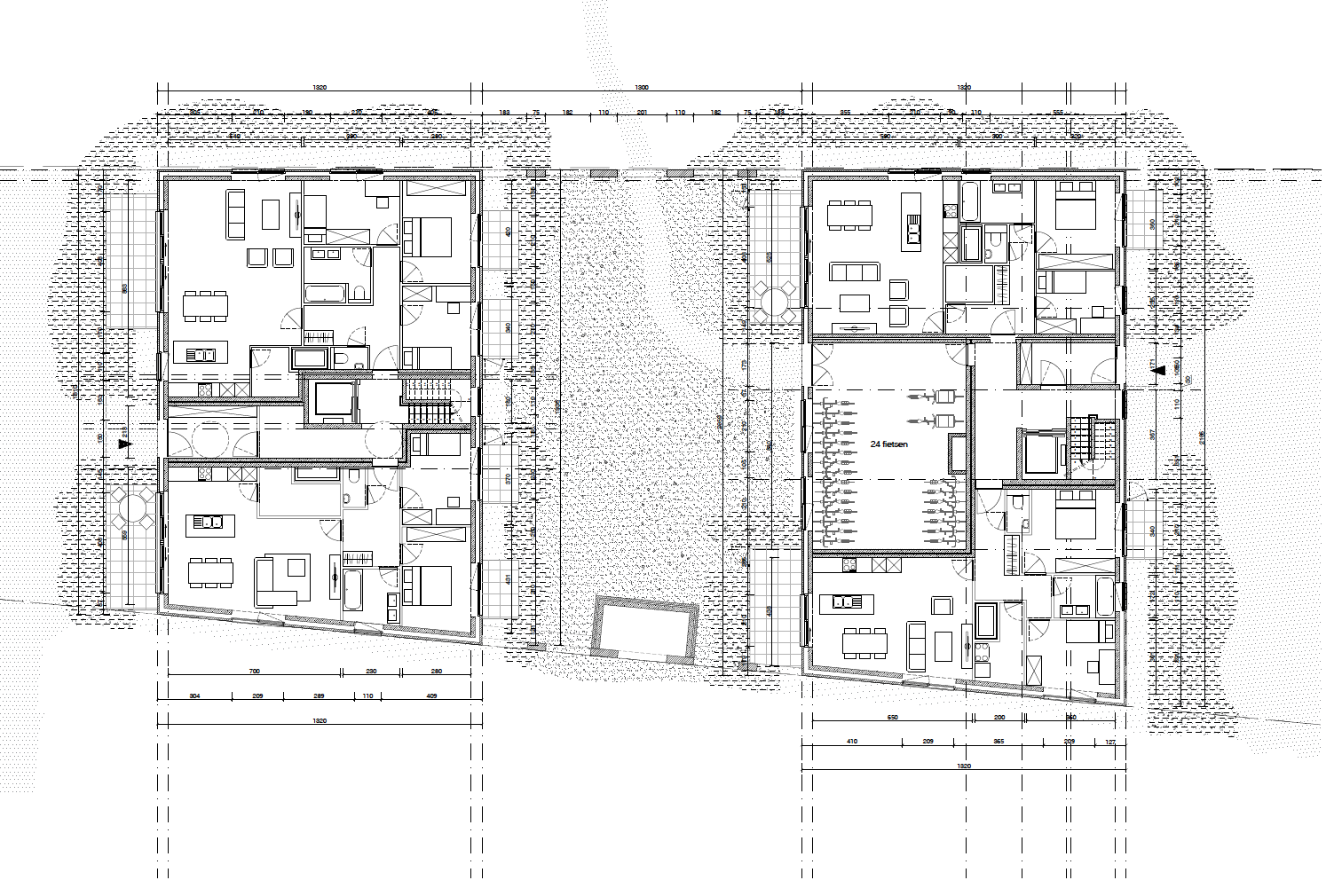
Typology: Residential new construction of 56 apartments
Phase: Sketch design
Year: 2021
Location: Beveren, Oost Vlaanderen, Belgium
Team: With20 architecten



Typology: Residential new construction of 56 apartments
Phase: Sketch design
Year: 2021
Location: Beveren, Oost Vlaanderen, Belgium
Team: With20 architecten

